















Concorso di progettazione per la riqualificazione e ampliamento del rifugio G.Graffer al Grostè
Competition entry: Year 2024
TEAM
Fabio Andreetti - @wall_studio_sgp
Francesco Ceredi - Studio Ceredi
Paolo Ceredi - Studio Ceredi
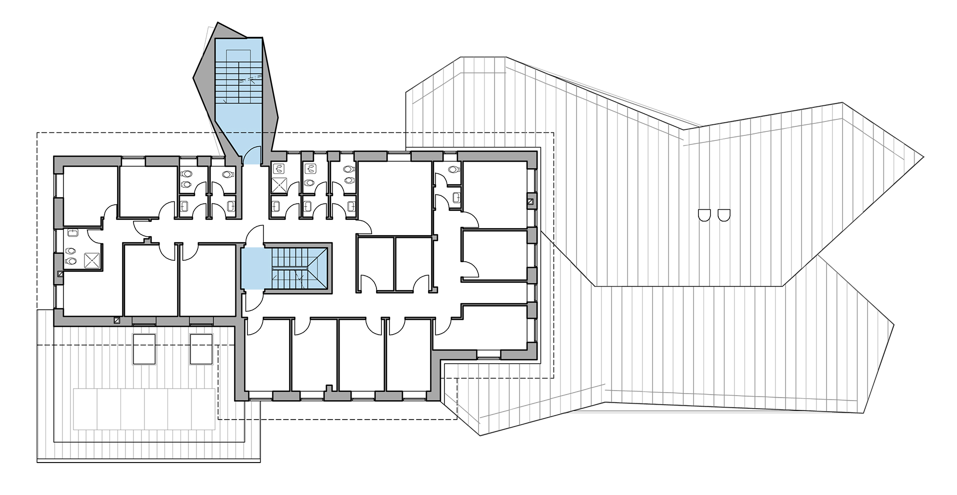
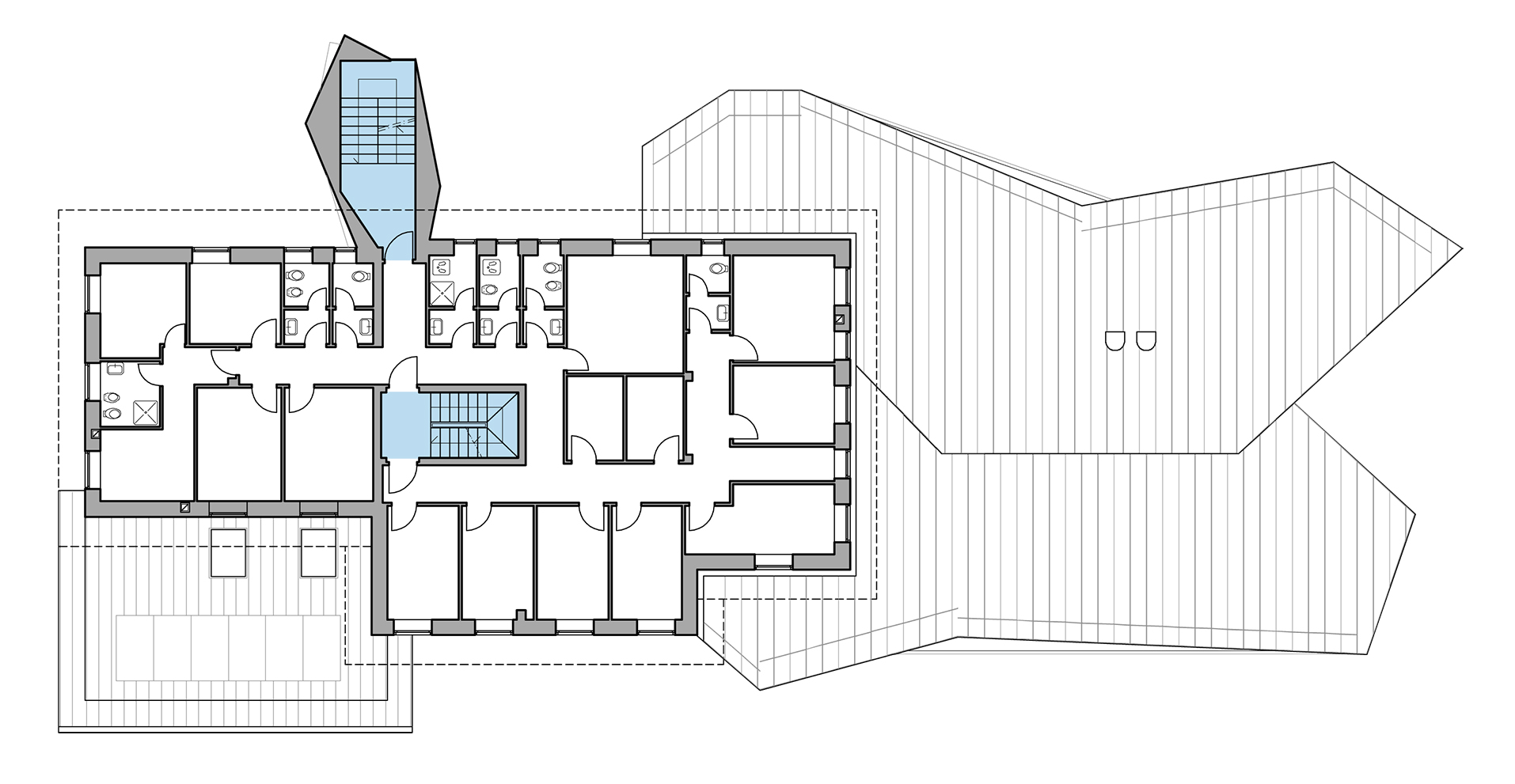
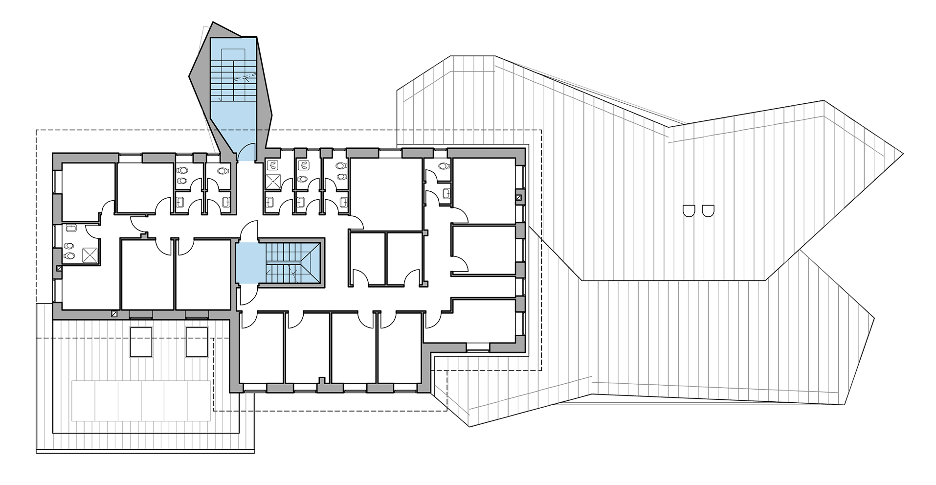
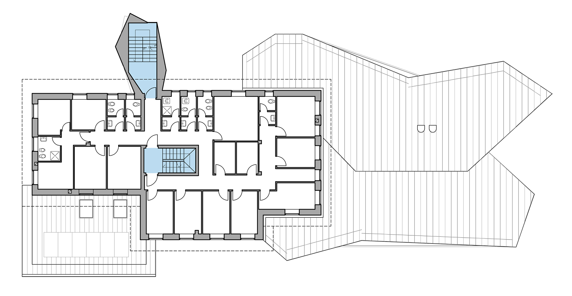
Adeguamento funzionale del fabbricato esistente
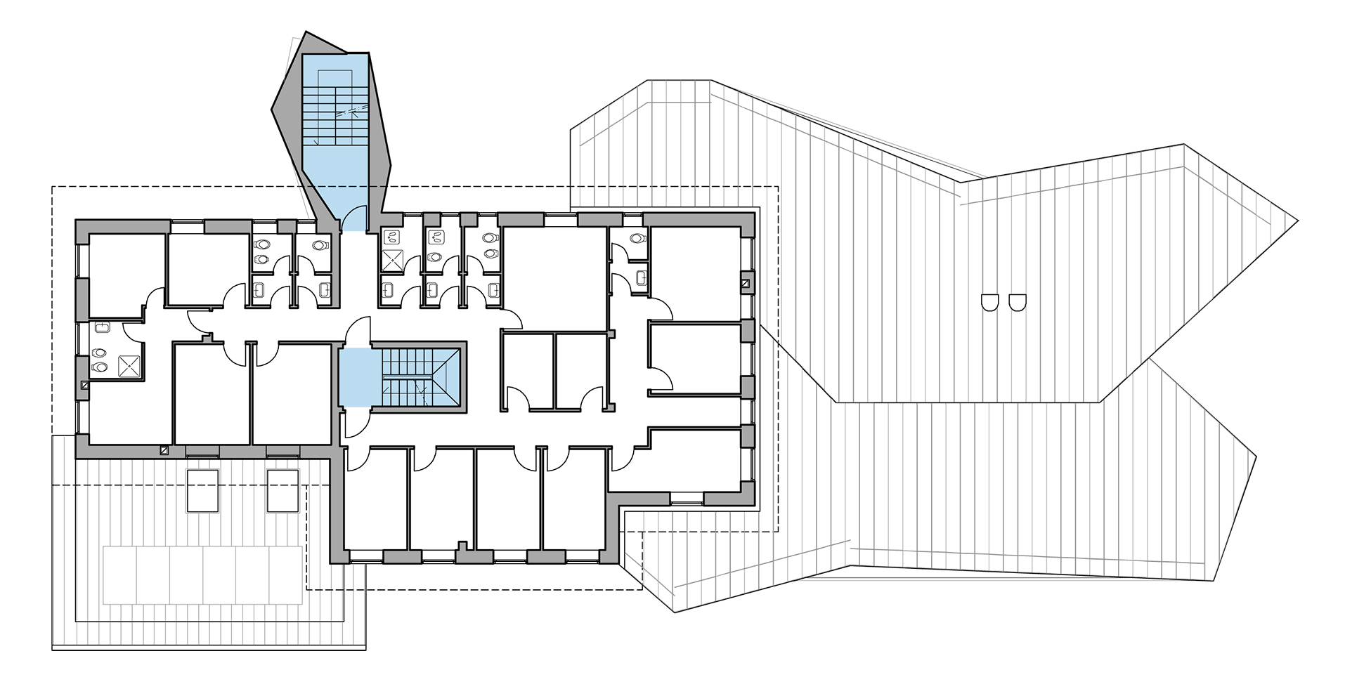
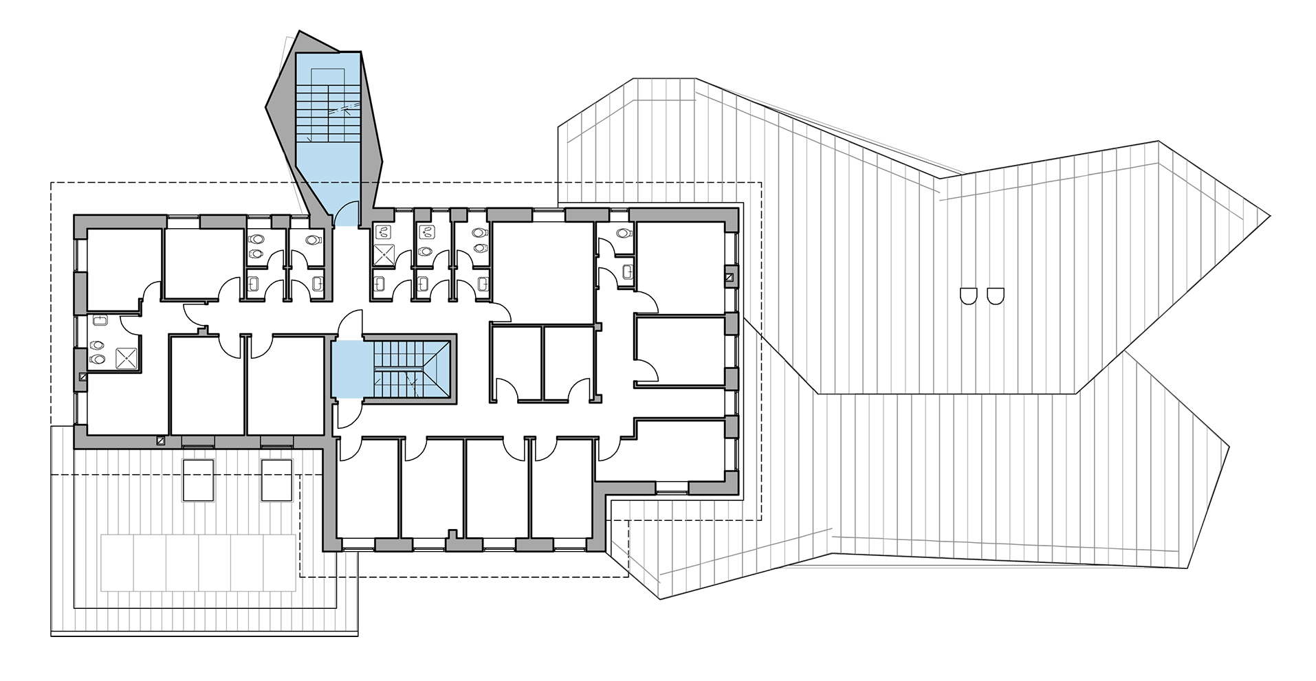
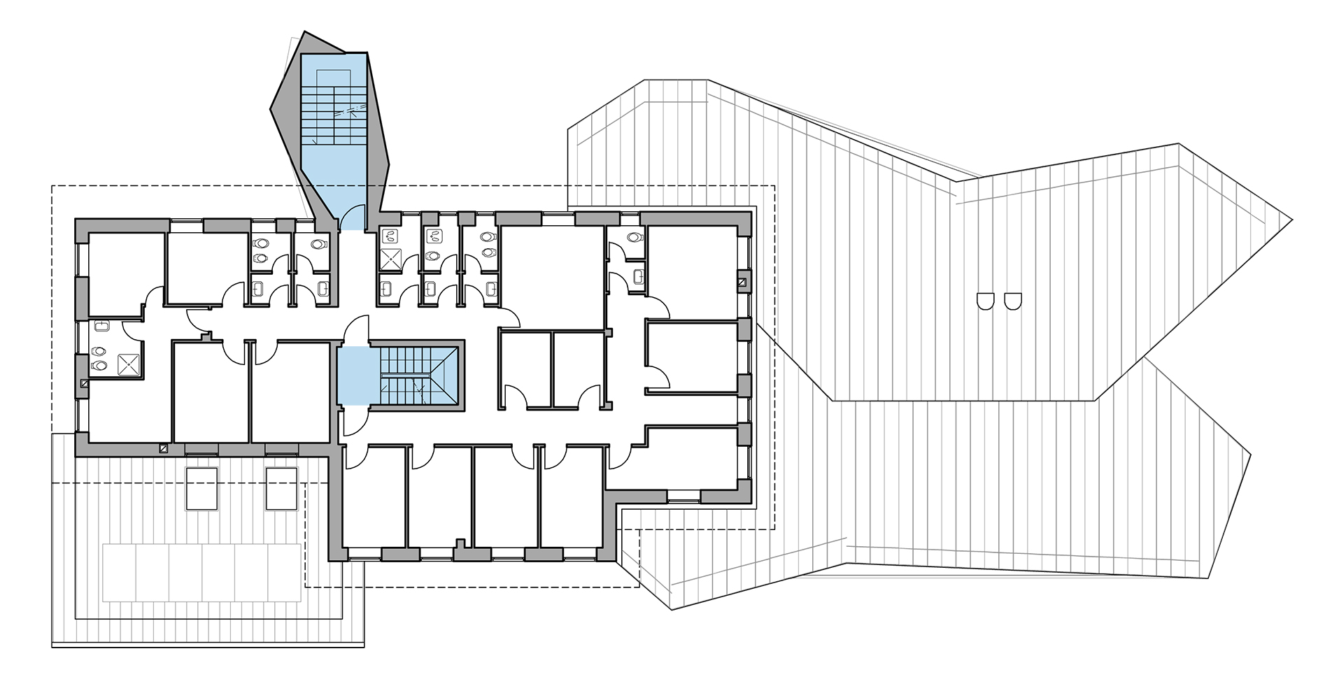
L'adeguamento funzionale procede nel rispetto del principio di conservazione e di intervento minimo sull'edificio esistente. Attraverso un'analisi attenta delle strutture in muratura, della disposizione compositiva delle facciate e del sistema delle scale e dei servizi esistenti, si sviluppa la proposta di riorganizzazione distributiva, descritta in modo sintetico per ciascun piano:
Piano terra. La zona rivolta a Nord-Ovest viene interamente destinata ai servizi igienici. In particolare, gli alloggi dei dipendenti vengono trasferiti al primo piano e si colloca il nuovo blocco dei bagni, direttamente collegato all'esterno sfruttando le aperture già esistenti. Inoltre i bagni sono in comunicazione con il corridoio interno che porta al blocco di servizi preesistenti, i quali vengono potenziati e razionalizzati nella distribuzione. Il locale precedentemente adibito ad alloggio del personale, posto sul lato Ovest viene trasformato in bivacco, con accesso diretto all'esterno. Sul lato Est, la zona cucina viene spostata nel nuovo ampliamento e il vano così liberato è destinato alla collocazione di quattro celle frigorifere. Viene eliminata la scaletta interna di collegamento tra la cucina e il banco self-service al primo piano, e si propone una nuova scala a rampa unica, posta in continuità con l'attuale scala esterna esistente, che collega il piano interrato al piano terra.
Piano rialzato. Nella sala viene riprogettata la zona del self-service esistente, collegandola direttamente alle cucine poste nel nuovo ampliamento. Inoltre, vengono eliminati gli spazi di distribuzione e ripostiglio, ampliando così l'offerta di servizi ristorativi. Vengono rimosse le due tettoie esterne poste all'angolo Nord-Ovest e all’angolo Nord-Est, al fine di ripristinare l'aspetto volumetrico originale del rifugio.
Piano secondo. E' prevista la ricollocazione degli alloggi del personale situati al piano terra.
Volumi in ampliamento
Il concorso richiede, come ampliamento dell'edificio esistente, l'aggiunta di un nuovo volume contenente una scala di accesso per tutti i piani del rifugio, una serie di servizi e depositi al piano terra, una nuova cucina e una sala ristorazione da circa 60 posti al piano rialzato. La suddivisione di tali spazi genera un'asimmetria di superfici tra i due piani interessati dall'ampliamento, che influisce sulla morfologia del nuovo volume.
In termini compositivi si decide di separare il nuovo corpo scala dal blocco cucine/sala cosi da collocare i due nuovi elementi in posizione strategica rispetto alla distribuzione interna e all’orientamento.
La nuova scala è posizionata sul fronte Nord in linea col pianerottolo di sbarco della scala interna esistente. Tale fronte è scelto perché ritenuto di minore valenza panoramica. Il volume in ampliamento ha una forma compatta, monolitica, verticale, e si innesta nel punto di arretramento murale del prospetto, fagocitandone l’irregolarità. La superficie esterna è realizzata in cemento, liscia e poliedrica, composta da una serie di piani sfaccettati che animano l'imponente volume. Un taglio vetrato attraversa il corpo scale in tutta la sua altezza, smaterializzandone un intero angolo. La scala viene progettata come una successione di doppie rampe, dimensionalmente confortevoli ed efficienti, che conducono a tutti i piani del rifugio. Lo sbarco è previsto utilizzando le apertura che attualmente sono utilizzate per la scala esterna di emergenza, per la quale è prevista la rimozione.
Viene pensato poi un secondo corpo di fabbrica in ampliamento contente le nuove funzioni di programma. L’asse Est-Ovest è individuato come direzione principale su cui sviluppare il nuovo volume che abbraccia il prospetto Est e proietta longitudinalmente i suoi venti metri di lunghezza. In testata l’ampliamento si biforca in due fronti poligonali che come due prue affilate fendono l’intorno. Si genera così una compenetrazione plastica di due corpi distinti, coperti da falde che si intersecano producendo una continuità di forma e giacitura con le coperture del rifugio esistente. Il volume complessivo appoggia in testata su due piloni triangolari arretrati rispetto al perimetro, così da enfatizzarne la sospensione. L’appoggio a ridosso del rifugio è costituito da un volume più solido, e monolitico che si allinea agli spigoli dell’elemento soprastante e ne riprendere la finitura superficiale. La differente estensione degli usi richiesti tra piano terra e piano rialzato, genera un ampio spazio aperto coperto. A completare il progetto è stata pensata una ampia pedana in legno scuro posta sul terreno, che si estende a Est oltre la proiezione del volume soprastante e si propone come spazio di sosta ora protetto ora esposto. Essa rappresenta anche un elemento di collegamento con l’edificio esistente correndo lungo il bordo di Sud, e insinuandosi sotto forma di scala fin dento l’ingresso principale.
Da un punto di vista distributivo, la divisione del volume di ampliamento in due testate, corrisponde nel piano rialzato, ad una suddivisione longitudinale in due ampi spazi di cucina e sala ristoro. Sul fronte Sud è collocata la sala, caratterizzata da un’ ampia vetrata e un terrazzo in affaccio sulle piste del Grostè e sul panorama dolomitico. Verso Nord si affacciano le cucine, collegate all’area self service e a un vano scale ad uso esclusivo, completo di montacarichi che porta ai piani sottostanti, dove sono collocati depositi, servizi igienici e la mensa per i dipendenti. Al piano terra è infine collocata la zona vendita in affaccio sulla nuova pedana esterna che rappresenta lo spazio di sosta attrezzata per gli avventori. È stata pensata anche una nuova scala più stesa e agibile che corre lungo il prospetto sud poi piega sotto al porticato principale e si sovrappone alla ripida scala esistente. Nei pilastri triangolari posti a sostengo del grande sbalzo sono collocati depositi esterni per attrezzature e spazi per l’isola ecologia.
Tecniche, materiali e manutenzione.
Il nuovo ampliamento del rifugio Graffer è concepito con una struttura di conglomerato cementizio armato declinato in setti portanti per gli elementi verticali, e lastre per gli orizzontamenti quali, solai di piano e falde di copertura. Il nuovo vano scale è costituito da travi rampanti in c.c.a. e involucro esterno in setti sagomati di calcestruzzo a vista. La scelta del calcestruzzo oltre ad una valenza estetica, soddisfa i requisiti di versatilità, resistenza e possibilità di creare forme complesse. Tale sistema costruttivo opportunamente progettato e realizzato, permette di garantire una durabilità dell’opera in un ambiente aggressivo, caratterizzato da numerosi rischi di degrado. Inoltre le superfici a vista non necessitano di particolari interventi di conservazione con conseguente abbattimento dei costi di manutenzione.
Ai fini del risparmio energetico e della riduzione delle dispersioni, gli involucri del volume in ampliamento sono opportunamente isolati mediante contropareti e controsoffitti interni con sistemi a secco.
Per quanto riguarda l’elemento della pedana e dei nuovi arredi in generale il progetto aspira all’utilizzo di materiali locali: legno di abete e di larice in tavole o doghe. In particolare per la pedana, la scala esterna e i pilastri di base si propone l’utilizzo di tavole di abete trattate con processo di carbonizzazione a fiamma che conferire alla superficie una colorazione scura. Tale processo oltre ad una valenza estetica risulta in grado di garantire durabilità nel tempo e minore manutenzione possibile a fronte di una inattaccabilità da agenti atmosferici, funghi, insetti xilofagi.
Linee architettoniche, materiali e valenza paesaggistica
La proposta progettuale adotta un linguaggio contemporaneo che si discosta dalla tradizione montanara tipica del rifugio, rispettando il principio di distinguibilità per garantire una corretta lettura dell’opera nel suo complesso. Le linee architettoniche dei volumi in ampliamento abbandonano l’ortogonalità dell’esistente per dirigersi verso una sfaccettatura spigolosa di piani caratterizzati da inclinazioni in continuo mutamento. La similitudine è con i processi geomorfologici delle rocce circostanti, caratterizzate da fenomeni che ne connotano lo sviluppo longitudinale enfatizzato da striature inconfondibili. Vengono aperti ampi tagli vetrati lungo alcuni spigoli del nuovo ampliamento cosi da mitigarne la massività.
La cesura compositiva tra vecchio e nuovo è attenuata dall'omogeneità dei materiali. Il grigio della pietra sbozzata che costituisce i muri del rifugio è richiamato dalle tonalità del cemento a vista utilizzato per i setti del nuovo corpo di fabbrica. Pietra e cemento, l’uno di formazione naturale, l’altro di produzione artificiale, ma entrambi elementi minerali dalla composizione simile. Il cemento a vista viene però trattato con una finitura liscia conferita dalla levigatura dei casseri, in contrasto con la scabrosità lapidea dei muri esistenti. In continuità con la tradizione delle architetture alpine è proposto poi un secondo materiale in abbinamento al cemento armato, ossia il legno abete a doghe. Viene tuttavia proposto con una finitura scura conferitagli da trattamenti di carbonizzazione. La sua applicazione è legata alla grande pedana a terra e alla coppia di pilastri triangolari. L’effetto è quello di un contrasto cromatico che esalta la sospensione dei volumi cementizi.
Il rifugio Graffer è uno degli elementi costitutivi del comprensorio sciistico di Madonna di Campiglio che per bellezza dei paesaggi ed efficienza degli impianti rappresenta oggi un polo turistico di forte attrattività. Attualmente il rifugio, imitando la tradizionale estetica montana si inserisce nel paesaggio come elemento antropico storicizzato. La costruzione del nuovo ampliamento con le sue linee contemporanee consolida ed enfatizza la presenza del rifugio nel territorio, instaurando una rinnovata relazione visiva con le valenze paesaggistiche circostanti.